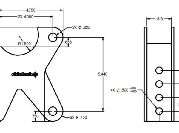
RID Brackets
Стоимость
Срок поставки: 35-60 дней*
*При наличии товара на складе производителя

цена не окончательная и может измениться
после подтверждения менеджеров
Купить в один клик
Ridetech 90000160
Ridetech Parallel 4 Link Axle Bracket
Характеристики
| Center Electrode Core Copper |
NGK 92400 Specifications
|
| Material |
Center Electrode Core Copper |
| Center Electrode Tip Material |
Material
|
| Electrical Terminal Type |
Center Electrode Tip Material Ruthenium |
| Gap Size (IN) |
Electrical Terminal Type Non-Removable Nut |
| Ground Configuration |
Gap Size (IN) .032
|
| Ground Electrode Core |
Ground Configuration Standard
|
| Material |
Ground Electrode Core Copper |
| Ground Electrode Quantity |
Material
|
| Ground Electrode Tip Design |
Ground Electrode Quantity 1
|
| Hex Size (IN) |
Ground Electrode Tip Design Projected Square Platinum Electrode - High |
| Insulator Height (mm) |
Ignitability
|
| Manufacturer Heat Range |
Hex Size (IN)
|
| Part Number FR7BHX-S |
Insulator Height (mm)
|
| Reach (IN) 75 |
Manufacturer Heat Range
|
| Resistance (ohms) |
Part Number FR7BHX-S |
| Seat Type |
Reach (IN) 75 |
| Stock Number |
Resistance (ohms)
|
| Thread Diameter (MM) |
Seat Type |